










089 Betreutes Wohnen Amberg Amberg, Wettbewerb 2010
Auftraggeber Stadt Amberg
Leistungen 1-3
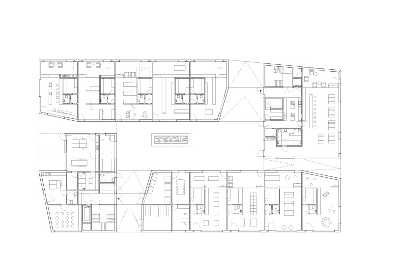
Entwurf einer Wohnanlage für Betreutes Wohnen und Umbau eines Altbaus zu einem Studentenwohnheim. Die Amberger Altstadt glänzt durch eine homogene und nahezu unzerstörte Baustruktur, die es behutsam zu ergänzen gilt: alle Straßen sind verwoben zu einem labyrinthartigen Netz aus Durchgängen, Passagen und Höfen, das wesentlich zum Charme der Stadt beträgt. Die städtebauliche Setzung und die leicht polygonale Form des Neubaus leitet sich aus dem historischen Kontext ab. Durch die neue Kubatur wird das Vakuum, das der derzeitige Bestand nicht zu füllen vermag, mit dem geforderten Programm geschlossen, es entstehen drei neue Plätze und Höfe in der Stadt. Die Form des Hauses mit Giebeln und Knicken vermittelt zwischen dem geforderten Raumprogramm und der Maßstäblichkeit der Altstadt, das Gebäude kann sowohl von allen Straßenseiten als auch vom Hof betreten werden.
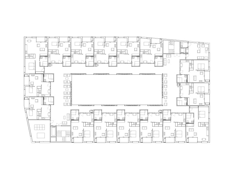
Seniorenanlaufstelle, Pflegeambulanz und Gewerbeflächen sind erdgeschossig, die Wohnungen für ältere Menschen in den Obergeschossen untergebracht. Schiebetüren sorgen für offene Raumfolgen, private Loggien für Kontakt zum Stadtraum, die Küche für eine Anbindung an den Binnenhof. Dachgeschoßwohnungen liegen an Dachterrassen, die vom Stadtraum nicht einsehbar sind und im Altstadtensemble somit nicht störend in Erscheinung treten. Im Eckertbau untergebracht und ebenfalls an die Tiefgarage angeschlossen, finden rund 40 Studenten Platz im eigenen Haus, dessen Tragstruktur bis auf wenige Deckendurchbrüche für Treppenhaus und Lift nicht tangiert wird. Im kostengünstigen Ausbau sind verschiedene Wohnformen denkbar: Wohngemeinschaften, Wohngruppen und größere Einzelapartments, die im Dachgeschoß mit Schlafgalerien ausgestattet sind.