





115 Rollenprüfstand Ingolstadt, Wettbewerb 1. Preis 2012
Auftraggeber Bertrandt AG
Leistungen 1-3
Status Wettbewerb






115 Rollenprüfstand Ingolstadt, Wettbewerb 1. Preis 2012
Auftraggeber Bertrandt AG
Leistungen 1-3
Status Wettbewerb
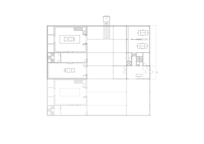
Das entlang der Wankelstraße gelegene Grundstück mit einer Größe von 3281 qm bietet Platz für einen freistehenden Neubau, der mit geringem Aufwand nach Südosten um einen zweiten Rollenprüfstand samt zugehöriger Nutzräume erweitert werden kann, indem im Raster und systemisch angebaut wird.
Zwischen zwei massiven Baukörpern - einem mehrgeschossigen Office Building und dem Rollenprüfstand - spannt sich das stützenfreie Volumen der Vorbereitungshalle auf, deren selbsttragende Fassade über das gesamte Bauvolumen weiterläuft und eine einheitliche thermische Hülle generiert.
Auf einem 1.25-Meter-Raster wird ein Stahlbetonfertigteil- oder Skelettbau errichtet, der von einer kostengünstigen Profilitglasfassade umschlossen wird, so dass alle Aussenbauteile den Anforderungen an Wärme-, Schall- und Schallimmissionsschutz Genüge leisten und an den richtigen Stellen Tageslicht ins Gebäudeinnere gelangen lassen. Die Arbeitsplätze im Office Building orientieren sich nach Nordosten entlang durchlaufender Fensterbänder, frei überspannte Geschosse erlauben flexible Büronutzung und offene Räumlichkeiten, die im Bedarfsfall durch Schiebeelemente abgetrennt werden können.