116 Wohnüberbauung Peisserstraße Ingolstadt, Wettbewerb 3. Preis 2013
Auftraggeber GWG Ingolstadt GmbH
Nutzfläche ca. 14.500 m2
Leistungen Wettbewerb in Zusammenarbeit mit Micheller & Schalk Landschaftsarchitekten
Status Wettbewerb
Weitere Infos
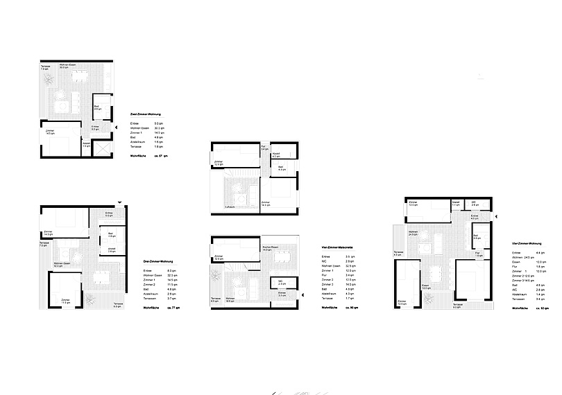
Die vorgeschlagene Bebauung entwickelt sich aus den vorgefundenen Hauptlinien der Nachbarbauten, vereint deren Ausrichtung und übernimmt Gebäudetiefe der Zeilen- sowie Baufeldbreite der kleinteiligen Bebauung. So entsteht ein Gebäudetypus, der mehrfach multipliziert, gedreht und versetzt angeordnet wird und dessen Maßstäblichkeit vermittelnd wirken kann. Insgesamt kommen auf dem zu überplanenden Areal zehn Einzelbauten zum Stehen, die raum- und platzbildend wirken und dennoch für die notwendige Durchlässigkeit des zukünftigen Quartiers sorgen: neben mehreren innenliegenden Gemeinschaftsflächen spannt sich zwischen Bestands- und Neubauten ein Freiraum auf, der als künftiger Mittelpunkt und Schnittmenge funktionieren kann.
Zwei Z-förmige Gebäudetypen, die gedreht und versetzt angeordnet werden, bilden sowohl einzelne Karrees als auch ein übergeordnetes Ensemble. Ihre Winkelform ermöglicht Wohngrundrisse, die in drei Himmelsrichtungen ausgerichtet und mehrfach belichtet sind. So erhält jede Wohnung viel Tageslicht und einen spannenden Zuschnitt. Dieses Konzept der eingestellten Kisten und durchgesteckten Räume kommt in allen Wohnungstypen und Geschossen zur Anwendung und sorgt für ein spannendes Spiel in der Fassade: Vor- und Rücksprünge geben überdachte Terrassen frei, deren Tiefe sich nach ihrer Nutzung bemisst.