085 Hauptschule Olching Olching, Wettbewerb 2009
Auftraggeber Stadt Olching
Nutzfläche 5.445 m²
Leistungen Wettbewerb in Zusammenarbeit mit Massmann Benak Architekten
Weitere Infos
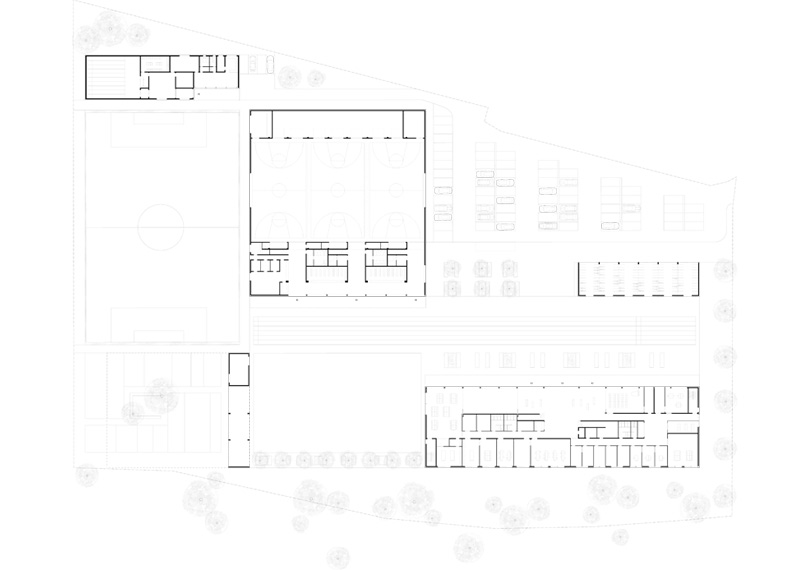
Entwurf einer Hauptschule mit Dreifachsporthalle und Freiflächen. Grundidee des Entwurfes war es, das Raumprogramm auf einzelne solitäre Gebäude aufzuteilen, die zusammen einen Campus aufspannen. So entsteht durch die offene Gebäudekonstellation von Schule, Turnhalle, Fahrradhaus und Pausenpavillon ein Hof mit vielerlei Bezügen, ein Allwetterplatz mit integrierter Sprintstrecke. Jeder Baukörper ist wieder erkennbar durchgeformt.
Die Schule orientiert sich mit ihrer Höhe und der volumetrischen Gliederung an den Dimensionen der kleinteiligen Bebauung in der Umgebung, Einschnitte in den beiden Obergeschossen werden zu Lichthöfen und Freiraumklassenzimmern und können im Bedarfsfall der Erweiterung des Raumprogramms diesen.