051 Haus LBL Ingolstadt 2007 - 2009
Auftraggeber privat
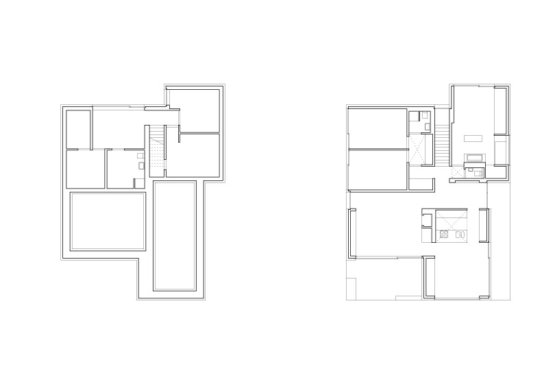
Nutzfläche 160 m²
Baukosten KG 300 und 400 390.000 Euro
Leistungen 1-8
Status gebaut
Weitere Infos
Stadtnah und dennoch im Grünen: diese vielversprechende Kombination ließ während der 70er Jahre eine vornehme Wohngegend wachsen, in der zahlreiche eingeschossige Bungalows stehen. Hinter hohen Mauern und Hecken erstrecken sich große Gärten, von der Strasse weitgehend uneinsehbar. Dem Wunsch der Bauherren nach erdgeschossigem Wohnen konnte in Anbetracht der Grundstücksgrösse entsprochen werden, und so entstand ein skulpturaler Flachbau mit hohem Fensteranteil. Zwischen drei tragenden Blöcken spannt sich eine fliessende Wohnlandschaft auf, die in schwebende Freiterrassen mündet.