016 Haus HN München 2005
Auftraggeber privat
Nutzfläche 97 m²
Baukosten KG 300 und 400 108.000 Euro
Leistungen 1-8
Status gebaut
Weitere Infos
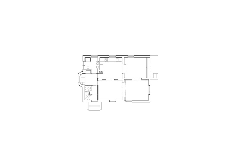
Das Erdgeschoss eines Wohnhauses, Baujahr 1930, wurde zu einer Wohnung für eine dreiköpfigen Familie umgebaut. Mittels großzügiger Wanddurchbrüche entstand ein "kreuzförmiger" Grundriss, welcher die vier Haupträume der Wohnung fliessend miteinander verbindet. Alle Räume können durch Schiebetüren voneinander abgetrennt werden.
Der temporäre Schrank zwischen Elternschlaf- und Kinderzimmer soll später ebenfalls durch eine Schiebetür ersetzt werden. Sämtliche Einbauten, Küche und Möbel wurden mitgeplant und derart integriert, dass auf wenigen Quadratmetern Wohnfläche grösstmöglicher Freiraum geschaffen wird.