088 Haus U München 2009 - 2011
Auftraggeber privat
Nutzfläche 204 m²
Leistungen 1 - 8
Status gebaut
Weitere Infos
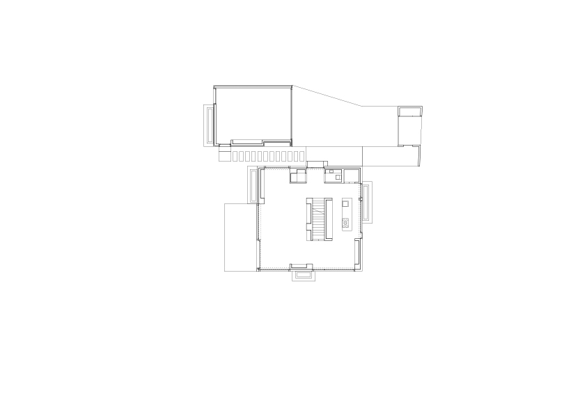
Ab 1920 entstand in Hartmannshofen eine Gartenstadt und Kriegsversehrtensiedlung mit insgesamt vierhundert Siedlungshäusern auf grossen Grundstücken. Besonders markant sind Steildächer in verschiedenen Variationen. Der Entwurf liefert eine zeitgenössische Antwort auf die Umgebung und genügt den strengen Vorgaben des Bebauungsplans bezüglich Baufeld, Grundfläche, Dachform und Wandhöhe.
Das Erdgeschoss ist als offener Raum konzipiert, der in jeder Himmelsrichtung mit dem Garten kommuniziert und lediglich durch ein eingestelltes Treppenhaus sowie Einbaumöbel in den Aussenwänden zoniert wird. In den beiden Obergeschossen befinden sich die Privaträume der Familie, die trotz klarer Strukturen durch Dachschrägen und Gaubenräume viel Geborgenheit ausstrahlen.