















126 Haus WLG Zuchering 2014 - 2017
Auftraggeber privat
Nutzfläche 210 m2
Leistungen 1-5 und 8
Status realisiert
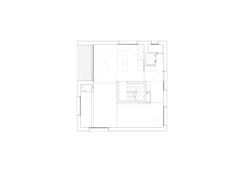
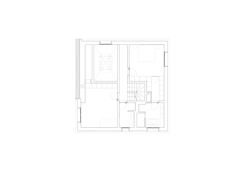
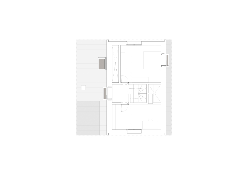
Ein Haus für eine Familie zu entwerfen ist eine Sache, es aus sich selbst heraus zu entwickeln eine weitere: wo jede Referenz fehlt und kein Ortsbezug greift, wird das Haus zum Bild und das Bild zum Haus. Inmitten der neuen Wohnsiedlung Fort X auf rechteckigem Baugrund und quadratischer Grundfläche errichtet und von zwei hölzernen Nebenbauten flankiert, birgt dieses Haus seine Wohn-, Schlaf- und Arbeitsräume auf drei Ebenen unter einem großen schützenden Dach asymmetrischen Zuschnitts. An seiner Südwestecke markiert ein ausgestellter Zwerchgiebel das Kinderzimmer, der, zunächst von innen nach außen gedacht, letztendlich zur formbildenden Maßnahme für den Baukörper wurde. Alle Fensteröffnungen sitzen achsensymmetrisch in der Wand des dahinterliegenden Raumes, ihre Größe bemisst sich nach ihrer jeweiligen Nutzung. So gestalten sich die vier Lochfassaden selbst.
Vom Untergeschoss bis unter den First steckt ein betonierter Treppenturm, um den herum sich offene wie geschlossene Räume legen: während das Erdgeschoss lediglich durch vier teils großformatige Schiebetüren unterteilt wird, führen Drehtüren vom Treppenpodest in die Schlafzimmer und Bäder des Obergeschosses. In monolithischer Ziegelbauweise konstruiert, von Holzdachstuhl und Metalldach bedeckt, mit geölten Eichenfenstern und Natursteinfensterbänken in den verputzten Außenwänden, einem Sichtbetonvordach und Messingknauf an der Haustür kamen robuste und dauerhafte Materialien zum Einsatz, deren natürliche Oberflächen ein stimmiges Farbenspiel abgeben.