150 Moschee Ingolstadt 2015-2019
Auftraggeber privat
Nutzfläche 475 m2
Leistungen 1-5 und 8
Status in Bearbeitung
Weitere Infos
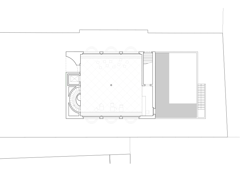
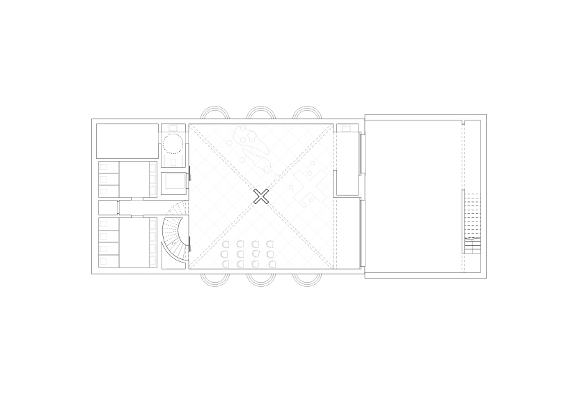
Eine kleine islamisch-arabische Gemeinde plant den Bau einer Moschee mit Gebetsraum, Bibliothek, Teehaus, Büro, Kinderspielfläche und Schulungsräumen. Der Typus Moschee mit Medrese wird im Hinblick auf Ort, Struktur und das liturgische Konzept der Gemeinde neu gedacht, auf landläufige Insignien verzichtet und mit größtmöglicher Archaik entwickelt. Als Vorbild diente die erste aller Moscheen: das Wohnhaus des Propheten in Medina, wo Mohammed unter einem Dach aus Palmen zu seinen Anhängern sprach.
Diese Einfachheit und Ursprünglichkeit typologisch zu greifen und auf das hinterliegende Grundstück zu anzuwenden ist Ziel der Aufgabe und Kern der Zusammenarbeit mit dem Gemeindevorstand. Der schlichte massive Baukörper mit wenigen Öffnungen in der Klinkerfassade und einfachem Metalldach sieht offene Räume auf jeder Ebene vor, die bei Bedarf selbst unterteilt werden können. Zwei raumhaltige Giebelwände nehmen Treppenhäuser und kleinere Nebenräume auf, die Gebetsnische Mirhab und die Predigtkanzel Mimbar finden dort in der Mekka zugewandten Raumecke Platz.