087 Kulturzentrum NEUN Ingolstadt 2009 - 2014
Auftraggeber Stadt Ingolstadt
Nutzfläche 1450 m²
Baukosten KG 300 und 400 2.900.000 Euro
Leistungen 1-8
Status gebaut
Weitere Infos
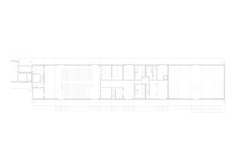
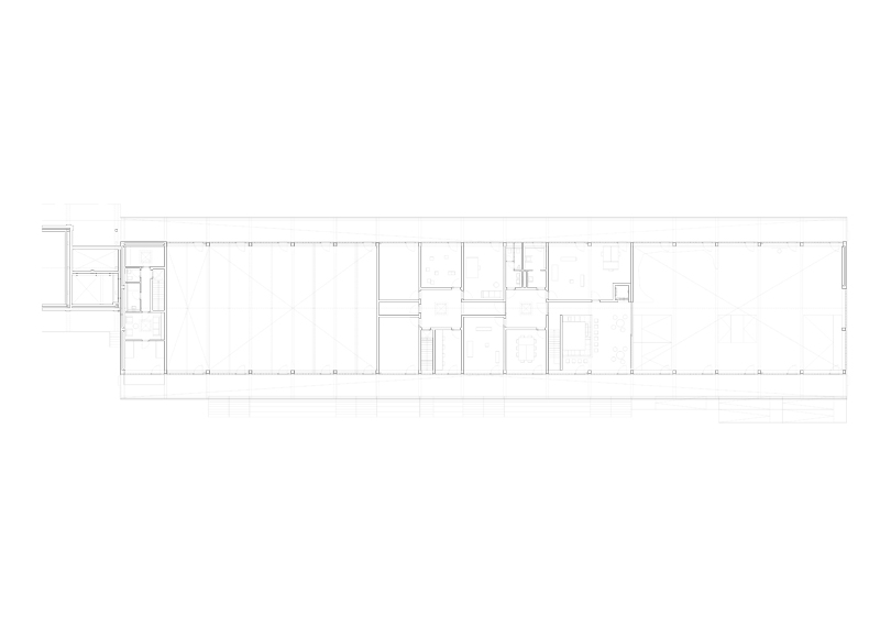
Eine leerestehende Güterhalle von 85 Metern Länge und direkt an den Gleisen gelegen wird zu einem großen Kulturzentrum mit Konzertsaal, Proberäumen, Bars, Büro, Skatepark, Boulderbereich und Trendsporthalle ausgebaut. Während die Gebäudehülle lediglich repariert und gestrichen wird, geraten Unterteilung und Auskleidung des Inneren zum Hauptthema: einem Haus im Haus ähnlich, zonieren Sichtmauerwände aus KS-Stein und unbehandelte Betondecken das mannigfaltige Raumprogramm: Konzertsaal und Skatehalle besetzen die Enden des langgezogenen Riegels, ein zweistöckiger Versorgungskern in der Gebäudemitte beherbergt alle vorgegebenen Nutz- und Nebenräume, die neben dem Backstagebereich die gleichzeitige Bespielung beider Hallen ermöglichen.
Gemäß der Parole „aussen Farbe – innen Material“ bleiben sämtliche Oberflächen in allen Räumen unverputzt und werden allein durch die wenigen vorgefundenen und neu verwendeten Baustoffe strukturiert. Gleiches gilt für die Gebäudetechnik, die offen an Decken und Wänden geführt wird. Ziel war es, den späteren Benutzern eine ebenso robuste wie unfertige Architektur zu übergeben, die eigeninitiativer Aneignung und Ausgestaltung nicht im Wege steht, allzu modische Farben und Formen meidet und so zu einem subkulturellen Möglichkeitsraum wird.