









043 Haus WNL Eichstätt 2007 - 2008
Auftraggeber privat
Nutzfläche 189 m²
Baukosten KG 300 und 400 370.000 Euro
Leistungen 1-8
Status gebaut










043 Haus WNL Eichstätt 2007 - 2008
Auftraggeber privat
Nutzfläche 189 m²
Baukosten KG 300 und 400 370.000 Euro
Leistungen 1-8
Status gebaut
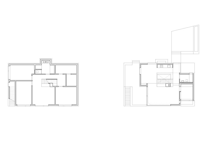
Das Bauland an der Weinleite, idyllisch gelegen über dem barocken Kloster Rebdorf und unweit der Altmühl, wurde Mitte der 70er Jahre erschlossen. Charakteristisch für das gesamte Areal ist die Hanglage seiner Grundstücke, stilprägend die einheitliche Gestaltung seiner Einfamilienhäuser: der bis heute gültige Bebauungsplan schreibt zwei Vollgeschosse, flache Dächer und Grenzständigkeit vor. Im Volksmund trägt die Siedlung den Beinamen „Klein-Jerusalem“. Topographie und Szenerie bestimmen das Haus für die vierköpfige Familie aussen wie innen: die Hangkante wird mit je einer Treppe überwunden, die Geländeniveaus miteinander verbunden. Man betritt das Haus auf Strassenniveau. Das obere Geschoss wurde als grosse offene Wohnlandschaft ausgebildet. Vom Entree schreitet man zwei Stufen nach oben zum Wohnplateau mit Freiterrasse, wo man den Ausblick auf die gegenüberliegende Hügelkette und die Frauenbergkapelle genießt.
Die Treppe führt in ein mit der der Wohnlandschaft im Obergeschoss verbundenes Gartenzimmer im Untergeschoss. Um das Gartenzimmer gruppieren sich die Privaträume, hangseitig befinden sich Abstell- und Technikräume. Ein grosses zentrales Oberlicht akzentuiert die Mitte des Hauses und transportiert Tageslicht in das tiefer gelegene Schlafgeschoß. Analog zu den örtlichen Gegebenheiten entstand ein plastisch durchgearbeitetes Raumvolumen auf mehreren Ebenen. Auf Grund der künstlichen Hangaufschüttung ist eine Bohrpfahlgründung notwendig. Das Haus erfüllt die Kriterien eines KfW Energiesparhauses 60 und ist mit einer Luftwärmepumpe in Splitbauweise mit Erdwärmenutzung ausgestattet.