097 Familienzentrum im Steinpark Freising, Wettbewerb 2010, 1. Preis
Auftraggeber Stadt Freising
Nutzfläche 1500 m²
Baukosten KG 300 und 400 4.300.000 Euro
Leistungen 1-9 in Zusammenarbeit mit Büro Lynen (Freiflächen) und Linsmayer Projekte (LP 6-8)
Status gebaut
Weitere Infos
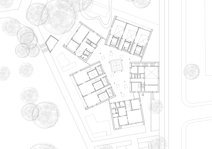
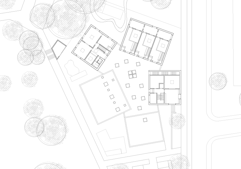
Am östlichen Rand des Areals General-von-Stein-Kaserne in einem Grünstreifen gelegen, wird das zukünftige Kinderhaus zum Drehpunkt zwischen zwei Wohnquartieren: der 1960er-Jahre-Siedlung im Osten und der geplanten Neubebauung auf dem Kasernengelände selbst. Der polygonale Zuschnitt des Grundstücks gibt im Hinblick auf das avisierte Raumprogramm und im Zusammenspiel mit erhaltenswertem Baumbestand verbindlichere Fluchten vor als die in gebührendem Abstand stehenden Bauten. Das Kinderhaus wird so zum freistehenden Pavillon hinter und zwischen den Bäumen.
Jeder Teilbereich ist in einem eigenen Haus untergebracht, der zentrale Verbindungsbau zieht sich zwischen die Kuben zurück, die Parklandschaft umschliesst jedes "Haus" auf drei Seiten mit Grün. Über vorgelagerte Veranden haben alle Häuser Zugang zum Garten. Neben der funktionalen gibt es eine pädagogische Konzeption: die unter dem Namen Reggio geläufige Methode sieht möglichst viele unterschiedliche räumliche Situationen vor und legt darüber hinaus Wert auf Ein- und Ausblicke sowie auf ein Zentrum, "Piazza" genannt, das zu allerlei Aktivitäten anregen und variabel bespielbar sein soll.